[]
[]
[]
[]
[]
[]
[]
[]
[]
[]
[]
[]
[Web Creator] [LMSOFT]
ИСПОЛНЕНИЕ БЕЗ ЭСТАКАДЫ: для установки на цементных силасах, бункерах и т.д.
ФИЛЬТР НАПОРНЫЙ ПЛАСТИНЧАТЫЙ ФРНЛ16УХЛ1 ТУ BY 690660797.001-2015

- Площадь фильтрации - до 17м2;
- Регенерация - вибровстряхивание;
- Производительность - до 5 000 м3/ч;
- Материал корпуса - сталь оцинк. 1,5 мм;
- Материал фильтра (согласно ТЗ).
Особенности:
- Низкая стоимость.
- Быстрота монтажа и смены фильтрэлемента.
- Может выпускаться без регенерации.
- Максимальная область применения.
АНТИКРИЗИСНЫЙ БЮДЖЕТНЫЙ :     ФИЛЬТР НАПОРНЫЙ ПЛАСТИНЧАТЫЙ ФРНЛ16УХЛ1
Фильтр рукавный ФРИЦ18УХЛ1  ТУ BY 690660797.001-2015

- Импульсная продувка сжатым воздухом
фильтровальных рукавов;
- Площадь фильтрации - 18м2;
- Номинальный объем фильтуемого воздуха -3800 м3/час;
- Номинальная масса фильтруемой пыли - 1450 кг/час;
- Материал  - Иглопробивной нетканный полиэстер
 с антистатической нитью,
плотность 500 г/м.кв. (опционально - согласно ТЗ);
- Номинальный расход сжатого воздуха
под давлением 6 бар - до 180 дм3/мин.;
- Сжатый воздух должен быть очищен от
капельной влаги не грубее 8 класса;
- Циклонный вход под прямым углом обеспечивает
 лучшую сепарацию мелкой пыли иотводит абразивную
 пыль от нижней части фильтровальных рукавов;
- Материал фильтра -  сталь Ст3пс , толщина листа - 2,5мм.;
 (опционально -сталь 09Г2С, AISI 304, AISI 316)
- Покрытие - грунт-эмаль  "Белакор"
- Опционально комплектуется cистемой раннего
распознования пожара, а также системой
центрального или местного пожаротушения;
- Оригинальный клапан Вентури увеличивает срок
эксплуатации фильтровальных рукавов;
- Управление регенерацией фильтра по времени
  или (и) по перепаду давления (согласно задания);
- Производитель  фильтра - ООО "Современные
 Машиностроительные Технологии";  
- Разработчик фильтра -  ООО "НАМТЕГ" ;
- Декларация соответствия требованиям :ТР ТС 010/2011,
ТР ТС 004/2011, ТР ТС 020/2011 ТС № RU Д-BY. AY04.B.31354
  
Фильтр рукавный ФРИЦ60УХЛ1  ТУ BY 690660797.001-2015

- Импульсная продувка сжатым воздухом фильтровальных рукавов;
- Площадь фильтрации - 60м2;
- Номинальный объем фильтуемого воздуха - 6200 м3/час;
- Номинальная масса фильтруемой пыли - 4 000 кг/час;
- Материал  - Иглопробивной нетканный полиэстер с антистатической
нитью, плотность 500 г/м.кв.;
- Номинальный расход сжатого воздуха под давлением 6 бар - до 380 дм3/мин.;
- Сжатый воздух должен быть очищен от капельной влаги не грубее 9 класса;
- Циклонный вход под углом 11° обеспечивает лучшую сепарацию мелкой пыли и
отводит абразивную пыль от нижней части фильтровальных рукавов;
- Материал фильтра -  сталь Ст3пс , толщина листа - 2,5мм.;
(опционально -сталь 09Г2С, AISI 304, AISI 316)
- Покрытие - грунт-эмаль  "Белакор" (изготовитель ЧУП "МАВ");
- Опционально комплектуется cистемой раннего распознования
пожара, а также системой центрального или местного пожаротушения;
- Оригинальный клапан Вентури увеличивает срок эксплуатации
фильтровальных рукавов;
- Управление регенерацией фильтра по времени  или (и)
 по перепаду давления (согласно задания);
- Производитель  фильтра - ООО "Современные Машиностроительные Технологии" Республика Беларусь (Серийный выпуск);  
- Разработчик фильтра -  ООО "НАМТЕГ" Республика Беларусь;
- Декларация соответствия требованиям :ТР ТС 010/2011, ТР ТС 004/2011,
ТР ТС 020/2011 ТС № RU Д-BY. AY04.B.3135
1) Наша компания изготавливает фильтра с пластинчатыми и картриджными фильтрами согласно технических заданий от заказчика.
2) Вожможна комплектация оборудованием для выгрузки пыли из бункера:
 - Шнековый конвейер
 - Шлюзовый перегрузчик
 - Клапан-мигалка
  
Фильтр ФРНА90УХЛ1 ТУ BY 690660797.001-2015

Технические характеристики:

1) Фильтровальная поверхность - до 60 м2;

2) Регенерация - вибровстряхивание;

3) Максимальная запыленность входящего воздуха - 55 г/м3;

4) Пропускная способность - до 20 000м3/ч;

5) Максимальная температура воздуха (стандарное исполнение) - до 150 С;

6) Материал изготовления - сталь оцинкованная ст08ПС толщина 2-2,5мм.;

7) Потребляемая мощность - до 0,55KW (220V);

8) Потребляемый объем сжатого воздуха - не требуется.
  
Фильтр ФРНА60УХЛ1 ТУ BY 690660797.001-2015

Технические характеристики:

1) Фильтровальная поверхность - до 60 м2;

2) Регенерация - вибровстряхивание;

3) Максимальная запыленность входящего воздуха - 55 г/м3;

4) Пропускная способность - до 10 000м3/ч;

5) Максимальная температура воздуха (стандарное исполнение) - до 150 С;

6) Материал изготовления - сталь оцинкованная ст08ПС толщина 2-2,5мм.;

7) Потребляемая мощность - до 0,2 KW (220V);

8) Потребляемый объем сжатого воздуха - не требуется.
  
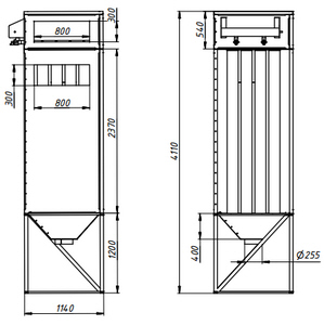
Фильтр ФРНА18УХЛ1 ТУ BY 690660797.001-2015

Технические характеристики:

1) Фильтровальная поверхность - до 18 м2;

2) Регенерация - вибровстряхивание;

3) Максимальная запыленность входящего воздуха - 55 г/м3;

4) Пропускная способность - до 5 000м3/ч;

5) Максимальная температура воздуха (стандарное исполнение) - до 150 С;

6) Материал изготовления - сталь оцинкованная ст08ПС толщина 2-2,5мм.;

7) Потребляемая мощность - до 0,2 KW (220V);

8) Потребляемый объем сжатого воздуха - не требуется.
  
Фильтры типа ФРН:
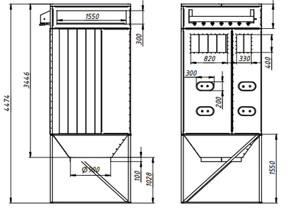
Фильтр ФРИА90УХЛ2 ТУ BY 690660797.001-2015

Технические характеристики:

1) Фильтровальная поверхность - до 90 м2;

2) Регенерация - продувка сжатым воздухом;

3) Максимальная запыленность входящего воздуха - 55 г/м3;

4) Пропускная способность - до 20 000м3/ч;

5) Максимальная температура воздуха (стандарное исполнение) - до 150 С;

6) Материал изготовления - сталь оцинкованная ст08ПС толщина 2-2,5мм.;

7) Потребляемая мощность - до 0,1 KW (220V)

8) Потребляемый объем сжатого воздуха - до 550 л/мин.
  
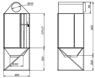
Фильтр ФРИА60УХЛ2 ТУ BY 690660797.001-2015

Технические характеристики:

1) Фильтровальная поверхность - до 60 м2;

2) Регенерация - продувка сжатым воздухом;

3) Максимальная запыленность входящего воздуха - 55 г/м3;

4) Пропускная способность - до 10 000м3/ч;

5) Максимальная температура воздуха (стандарное исполнение) - до 150 С;

6) Материал изготовления - сталь оцинкованная ст08ПС толщина 2-2,5мм.;

7) Потребляемая мощность - до 0,1 KW (220V)

8) Потребляемый объем сжатого воздуха - до 360 л/мин.
  
Фильтр ФРИА18УХЛ2 ТУ BY 690660797.001-2015

Технические характеристики:

1) Фильтровальная поверхность - до 18 м2;

2) Регенерация - продувка сжатым воздухом;

3) Максимальная запыленность входящего воздуха - 55 г/м3;

4) Пропускная способность - до 5500м3/ч;

5) Максимальная температура воздуха (стандарное исполнение) - до 150 С;

6) Материал изготовления - сталь оцинкованная ст08ПС толщина 2-2,5мм.;

7) Потребляемая мощность - до 0,1 KW (220V)

8) Потребляемый объем сжатого воздуха - до 100 л/мин.
  
Фильтры типа ФРИ:
Состав условного обозначения фильтров

ФР – А – B  С  ТУ



ФР – сокращенное обозначение типа фильтра:
ФРИ – фильтр рукавный с импульсной продувкой (регенерацией);
ФРН – фильтр рукавный напорный.

А – обозначение, указывающее область (отрасль) применения фильтров:
А – универсального применения;
Г – грохочение, помол, рассев, дробление, смешивание, классификация, обжиг и упаковка металлических и неметаллических порошков;
Д – деревообработка;
Л – металлургия;
М – металлообработка, в том числе механизированная зачистка, абразивная обработка на наждачных, заточных, отрезных, шлифовальных станках;
Н – механическая обработка неметаллических материалов (графита, керамики, текстолита, резины и т.п.);
О – обработка пескоструйная или дробеструйная;
П – порошковая окраска;
С – обработка стекла и пеностекла;
Т – угольная промышленность;
Ц – производство строительных материалов (цемент, алебастр, сухие смеси, облицовочные изделия, керамическая плитка и пр.);
У – производство удобрений.

B – площадь поверхности фильтрования, м2.

С – климатическое исполнение фильтров по ГОСТ 15150.

ТУ – обозначение настоящих технических условий «ТУ BY 690660797.001-2015».

Примечание – По требованию или по согласованию с Заказчиком (Потребителем), или по усмотрению изготовителя состав условного обозначения фильтров может быть изменен или дополнен.  
Наша компания согласно ТУ BY 690660797.001-2015 серийно изготавливает аспирационные фильтры с двумя видами регенерации (самочистки) фильтровальных элементов:

1) Вибровстряхивание (очистка встроенным пластинчатым вибратором) - модели типа "ФРН"  (ФРН 18, ФРН 60, ФРН 90)

2) Продувка сжатым воздухом - модели типа "ФРИ" (ФРИ 18, ФРИ 60, ФРИ 90)

  
Рукавный фильтр для промышленности (дополнительно комплектуется вентилятором)
Конструкция фильтровальных установок для различных производств отличается в применяемых фильтровальных элементах. Для каждого конкретного случая мы подбираем оптимальный  вариант материала и конструкции, чтобы фильтровальные элементы эффективно и долгое время выполняли свои функции.

Мы сотрудничает в ведущими европейскими предприятиями по изготовлению промышленных фильтровальных материалов, которые гарантируют качество своих изделий.
Наша компания изготавливает фильтровальные модули для очистки воздуха на базе рукавных и кассетных фильтров.

Мы стремимся унифицировать фильтровальные установки для систем аспирации.
Для этого нами были разработаны модули на базе рукавных фильтров производительностью от 5000 до 20 000 м3/ч с системой обратной продувки или системой вибровстряхивания.

Если  требуется увеличение производительности, то добавляется еще один модуль необходимой производительности для этого не требуется изменять конструкцию всей системы аспирации.

Мы изготавливаем аспирационные фильтровальные установки для различных производств:
  
  • Деревообратки
  • Химической промышленности
  • Строительных комбинатов
  • Горнодобывающей промышлености
  • Металлургии
Рукавный фильтр для очистки воздуха в системах аспирации и пневмотранспорта.
+375(29) 103 6664  Info@stroimdom.by
Контакты
www.aspiration.by     Частное предприятие "СтройОптИндустрия"    
Мы производим системы любой сложности с индивидуальным подходом к каждому клиенту.
На нашем сайте размещена информация о выпускаемых системах промышленной аспирации для деревообрабатывающих, металлургических предприятий, предприятий легкой и тяжелой промышлености.
Мы производим аспирационные установки и системы пневмотранспорта для деревообрабатывающих, металлургических предприятий, предприятий легкой и тяжелой промышлености.
Аспирация. Обеспыливающая вентиляция. Воздухоочистное и газоочистное оборудование
aspiration.by. промышленные фильтры.  аспирация в минске. Заказать систему аспирации. Промышленная очистка воздуха. аспирация для деревообработки. Пылевые вентиляторы. Пылеулавливающие циклоны.
Производство аспирации. воздуховоды для аспирации. Стоимость. Пылеулавливающие фильтры. Каталитические реакторы
Частное предприятие "СтройОптИндустрия" Республика Беларусь. Производитель промышленных систем аспирации. Аспирация. Элементы систем аспирации. Автоматика для аспирации. Удаленый контроль за процессом аспирации. Производство под заказ. Опыт и качество.